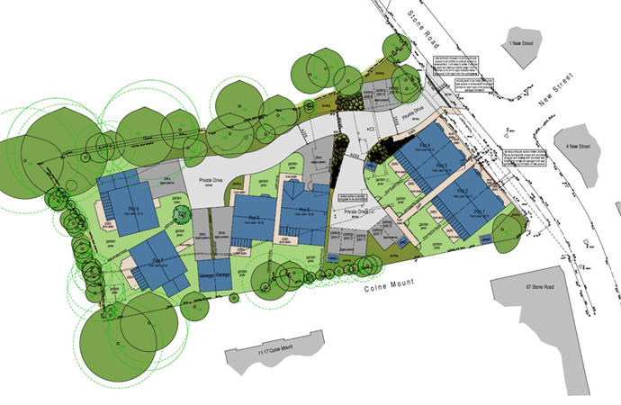
An individual collection of 3/4 & 5 bedroom energy efficient homes in the thriving market town of Uttoxeter. Each individually designed to accommodate modern, open plan living.
An individual collection of 3/4 & 5 bedroom energy efficient homes in the thriving market town of Uttoxeter. Each individually designed to accommodate modern, open plan living.